Logo Mikasa Vastgoed
Logo Mikasa Vastgoed
Ciudad Quesada

SERENA GARDEN

Ciudad Quesada
€305.000
€3.427 /m2
2 Slaapkamers
2 Badkamers
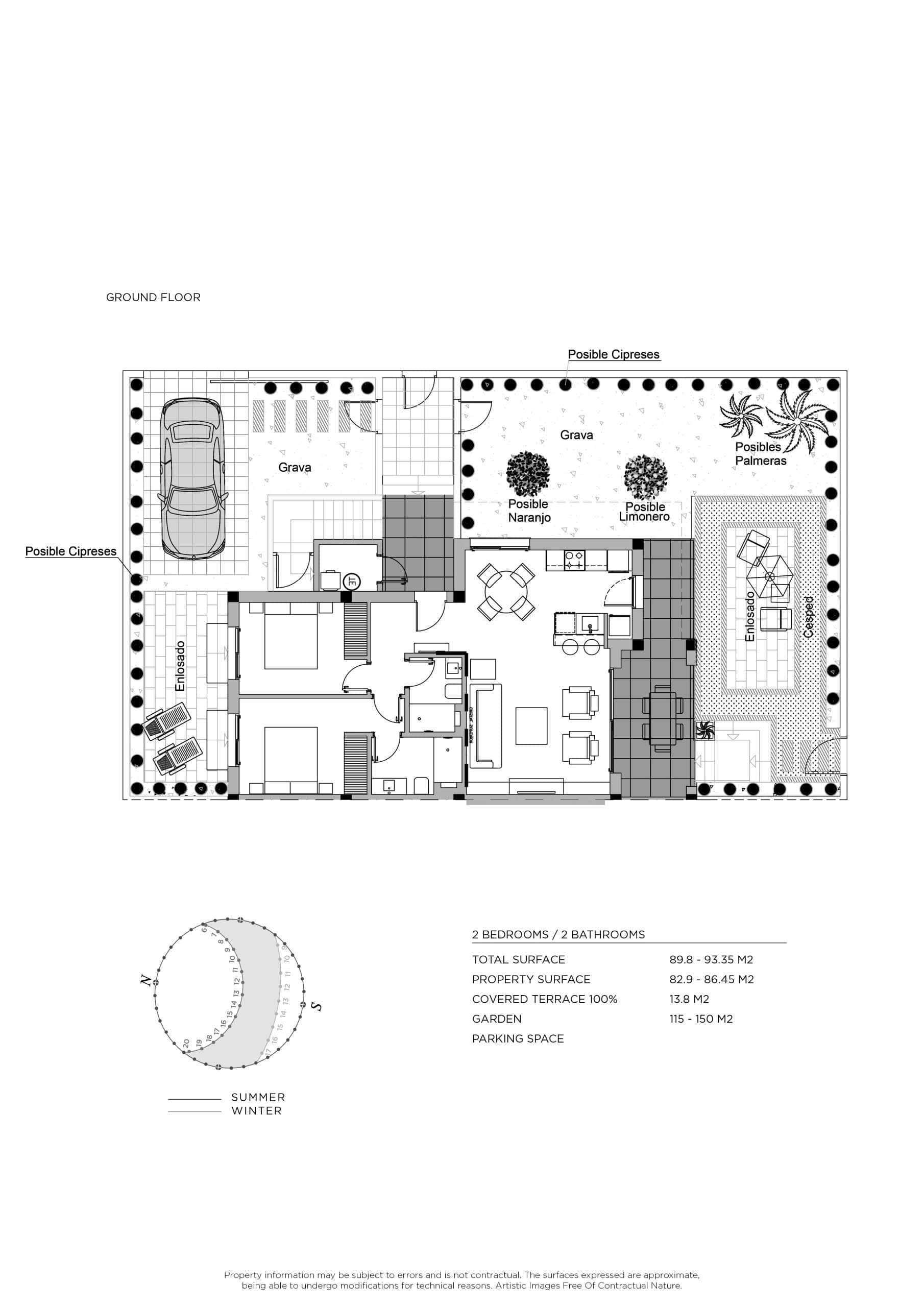
89 m² Oppervlake
Realisatie: 2024
Item ID: 19254

SERENA GARDEN

Ontdek het nieuwe project in Rojales, bestaande uit moderne bungalowflats met 2 slaapkamers. Deze woningen zijn beschikbaar in twee configuraties: begane grond met privétuin en eerste verdieping met privédakterras. De omheinde gemeenschap biedt ruime groene zones, een zwembad en privéparkeerplaatsen. Met alle noodzakelijke voorzieningen binnen handbereik, zoals supermarkten, golfbanen, restaurants en gezondheidscentra, is deze locatie ideaal om te genieten van een comfortabel en ontspannen leven. Rojales, een charmant agrarisch dorp, is uitgegroeid tot een van de favoriete bestemmingen in het binnenland van de Vega Baja, dankzij de strategische ligging en uitstekende bereikbaarheid, waardoor je de luchthaven van Alicante in 20 minuten bereikt en de stranden van Guardamar, La Mata of Torrevieja in 15 minuten.

BUITENRUIMTES

De bungalows in Rojales onderscheiden zich door hun moderne en functionele ontwerp. De appartementen op de begane grond hebben een privétuin, ideaal om te genieten van het buitenleven en te ontspannen in een intieme omgeving. De appartementen op de eerste verdieping hebben een eigen dakterras, perfect om te zonnebaden en te genieten van het panoramische uitzicht. Het complex biedt ruime en goed onderhouden groene zones, die een natuurlijke en rustige omgeving creëren. Het gemeenschappelijke zwembad is de perfecte plek om af te koelen tijdens de warme zomerdagen. Een privéparkeerplaats biedt extra comfort en veiligheid voor de bewoners.

BINNENRUIMTES

Het interieur van de nieuwbouw bungalows in Rojales is ontworpen om een moderne en comfortabele leefruimte te bieden. Met een bebouwde oppervlakte van 89 m² en 79 m² bruikbare oppervlakte hebben de appartementen 2 tweepersoonsslaapkamers en 2 complete badkamers, allemaal met een hoogwaardige afwerking. De keuken, uitgerust met moderne apparatuur, integreert perfect met de woon-eetkamer en creëert een open en lichte sfeer. De grote ramen laten veel natuurlijk licht binnen, wat het gevoel van ruimtelijkheid en verbinding met het exterieur versterkt. Ingebouwde kasten in de slaapkamers bieden voldoende opbergruimte. Het interieurontwerp, met zijn focus op functionaliteit en stijl, zorgt ervoor dat elk detail bijdraagt aan een gastvrije en stijlvolle sfeer.

Kenmerken:

  • Zwembad: 1, Community pool
  • Energielabel: B
Object ID:
19254
Prijs:
€305.000
Locatie:
Ciudad Quesada
Regio:
Ciudad Quesada
Slaapkamers:
2
Badkamers:
2
Oppervlakte:
89 m²
Perceeloppervlakte:
0 ft²
Realisatie:
2024
Object ID:
19254

Ontdek toonaangevende panden en bemachtig uw droomhuis bij ons. Deskundige begeleiding en ondersteuning bij elke stap.

Contact

Calle Fotografo Goyo 2, Planta Baja, Puerta 6 03540 Alicante (Spain)

Volg Ons Op Social Media

© 2025 Mikasa Vastgoed All rights reserved.